一、撈毛機(機械格柵)用途:
撈毛機(機械格柵),廣泛應用于城市污水處理廠、自來水廠、泵站、電廠進水口,自動攔截并清除水中的漂浮物,保證下道工序的正常運行;也可用作紡織、印染、屠宰、制革、造紙、制糖、釀酒、食品加工中的固液分離。
二、型號意義:

三、主要特點:
撈毛機(機械格柵)結構緊湊、電氣控制簡單,便于實現自動化;耐蝕性優、能耗小、噪音低;除污動作連續、排污干凈、分離效率高。
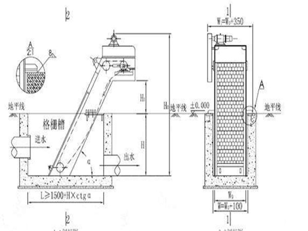
四、工作原理:
撈毛機(機械格柵)是由ABS工程塑料、尼龍或不銹鋼制成的耙齒,按一定的排列次序裝在耙齒軸上形成封閉式耙齒鏈,其下部裝在進水渠水中。當傳動系統帶動鏈輪作勻速定向旋轉時,整個耙齒鏈便自上而下運動,并攜帶固體雜物從液體中分離出來,流體通過耙齒間隙流出去,整個工作狀態連續進行。

由于耙齒的結構形狀,使耙齒鏈攜帶雜物到達上端反向運動時,前后耙間產生相對自清運動,促使雜物依靠重力脫落,同時設備后面可設置一對膠板刷,以保證每排耙齒運動此位置時都能得到好的刷凈。
